TM 55-1930-203-10
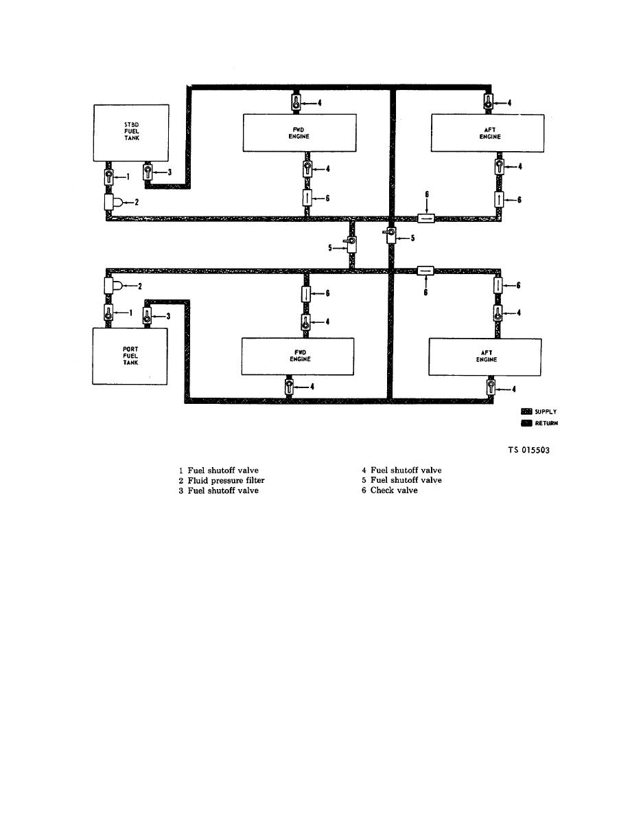
Figure 1-3. Fuel system schematic.
1-6.
Differences in Models
There is little difference between hulls 5 through 18, 19 through 24, 25 through 48, and 49 through 60. There are some
minor structural and component differences which do not affect the method of operation or operator maintenance of the
LARC.
1-7