TM9-2330-358-14&P
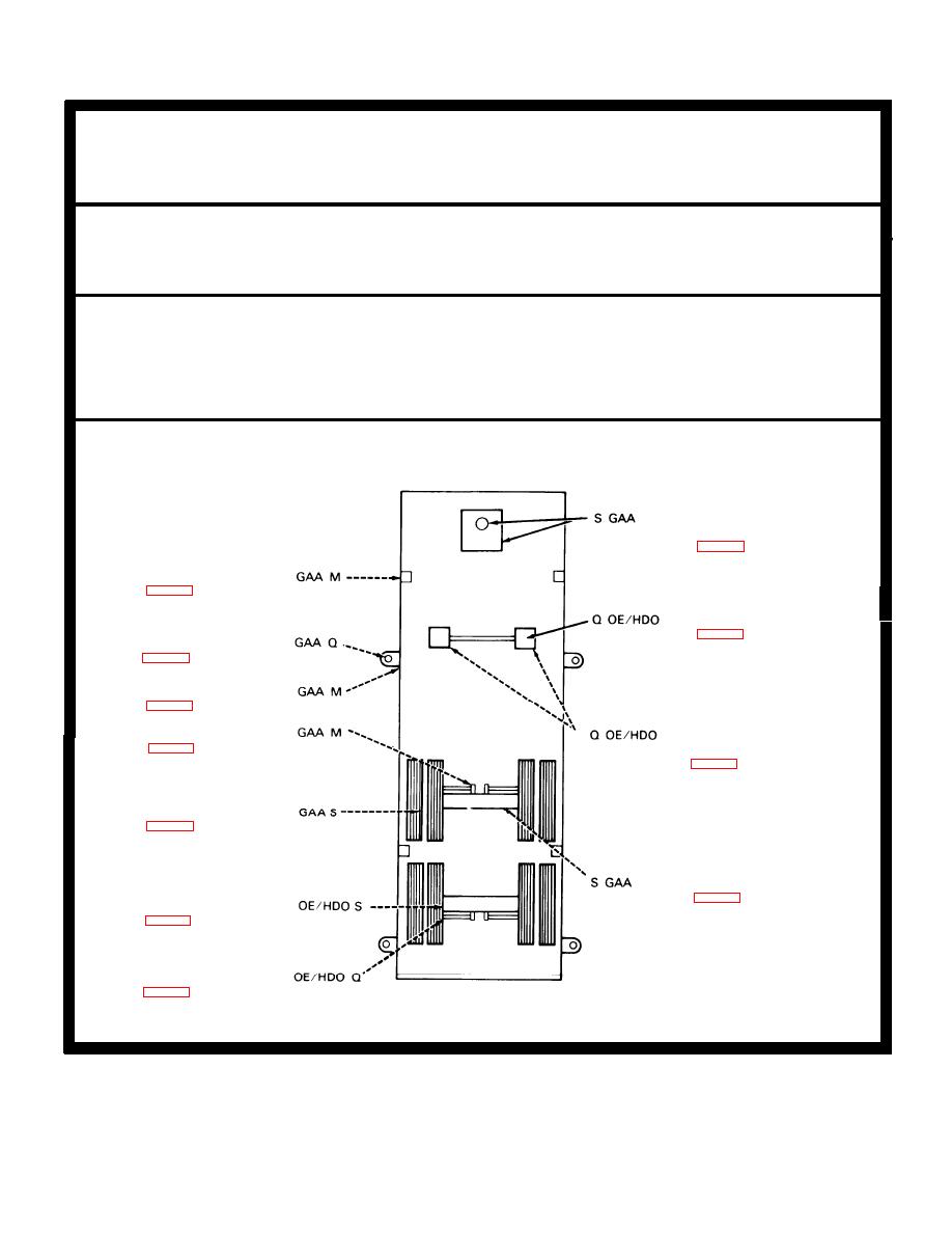
LUBRICATION CHART
SEMITRAILER, BREAKBULK/CONTAINER TRANSPORTER,
M871 AND M871A1
Intervals are based on normal operation. Reduce to com-
Clean fittings before lubricating. Clean parts with PD-
pensate for abnormal operation and severe conditions or
680, SD-2 SOLVENT, dry cleaning. Dry before
lubricating. Lubricate dotted arrow points on both sides
intervals may be extended commensurate with
of the equipment.
adequate preservation. Relubricate after washing or
fording.
LUBRICANT q INTERVAL
INTERVAL q LUBRICANT
Upper Fifth Wheel
Plate and Kingpin
(See Note 3)
Retractable Locks
Landing Gear Crank
Sling Eye Pockets
Sling Eye Locking Latches
Slack Adjuster
Landing Gear Legs
and Foot
Camshaft
Brake Roller
Brake Anchor Pin
Figure 3-1.
Lubrication Chart (sheet 1 of 2)
3-2