Home
Download PDF
Order CD-ROM
Order in Print
Figure F-59. Insulation, Part Number 13229E8101/41
Figure F-62. Gasket, Part Number 13229E8105/17
TM-9-4120-407-14 Air Conditioner 36 000 BTU Vertical Mult-Power Input Model F36T-MPI NSN 4120-01-359-0083 Manual
Page Navigation
303
304
305
306
307
308
309
310
311
4120-01-359-0083
Manual" class="tooltip">312
TM
9-4120-407-14
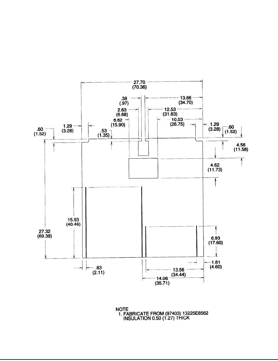
Figure
F-61.
Insulation,
Part
Number
13229E8105/9
F-29