Home
Download PDF
Order CD-ROM
Order in Print
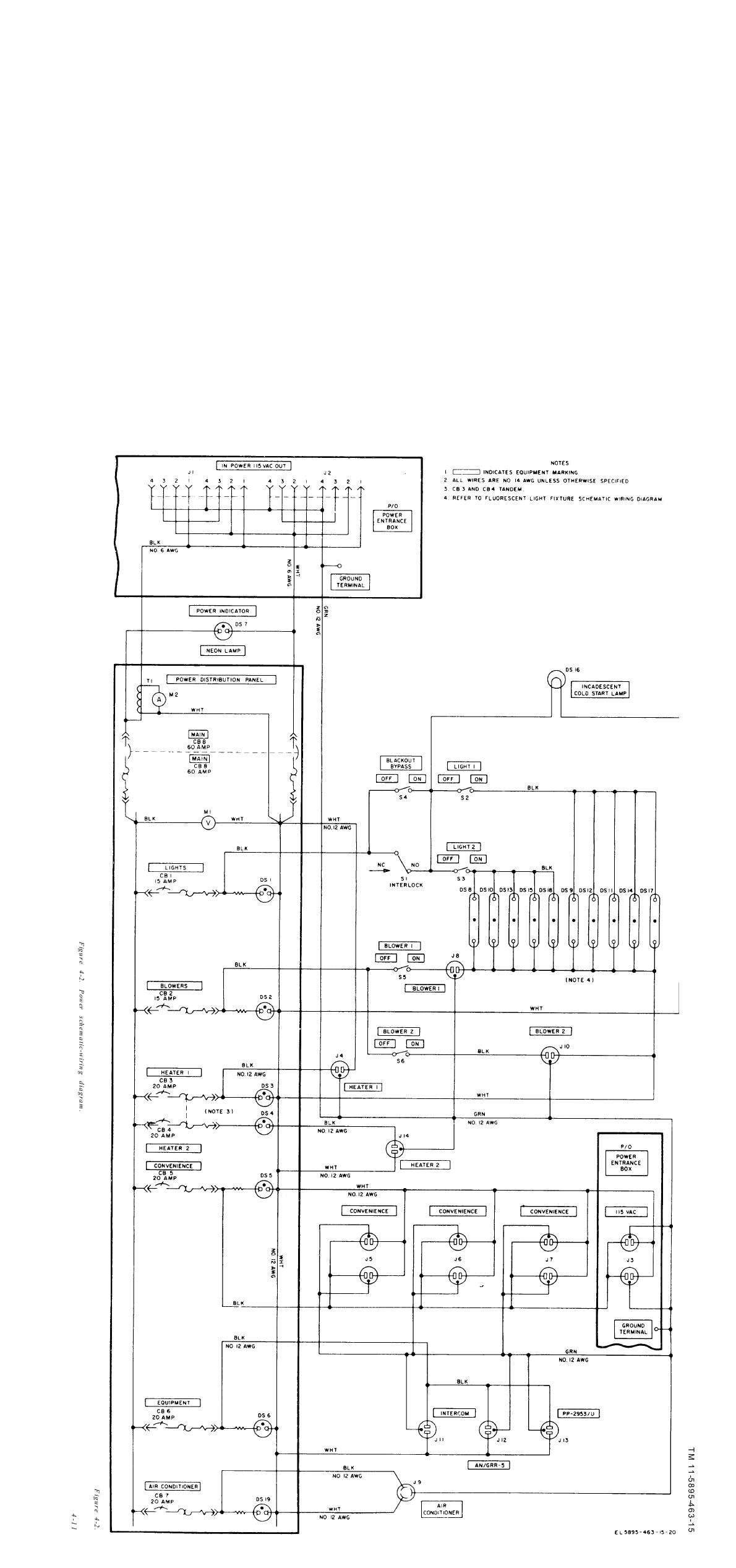
Figure 4-1. Signal schematic wiring diagram
Section Il. ORGANIZATIONAL REPAIR PROCEDURES
TM-11-5895-463-15 Operation Center Communications AN/MSC-31A (NSN5895-00-999-2629) Manual
Page Navigation
28
29
30
31
32
33
34
35
36
37
38