TM 55-1925-284-14&P
0004 00
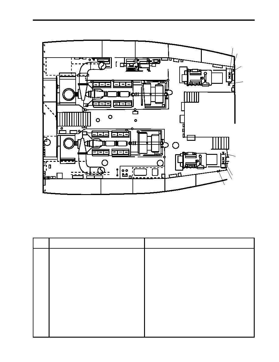
MSD VALVES, ENGINE ROOM FORWARD
1
2
3
4
EOS
5
6
7
8
Figure 6. MSD Valves, Engine Room Forward
Table 6. MSD Valves, Engine Room Forward (Refer to figure 6)
Key
Control/Indicator
Function
1
SD-6 COV-SEW DISCH PMP NO. 2 DISCH
This valve, when CLOSED, isolates the discharge of
sewage pump No. 2.
2
SD-20 SEW PMP NO. 2 DISCH PRESS
This valve, when CLOSED, isolates the pressure
GAGE ISLN
gauge to sewage pump No. 2.
3
SD-8 SEWAGE OVERBOARD DISCHARGE
This valve, when CLOSED, isolates the sewage to
shore connection.
4
SD-4 COV-SEW DISCH PMP NO. 2 SUCT
This valve, when CLOSED, isolates the suction side
PMP NO. 2 SUCT
of sewage pump No. 2.
5
SD-5 COV-SEW DISCH PMP NO. 1 SUCT
This valve, when CLOSED, isolates the suction side
of sewage pump No. 1.
0004 00-7