TM 9-2330-373-14 & P
4-28.
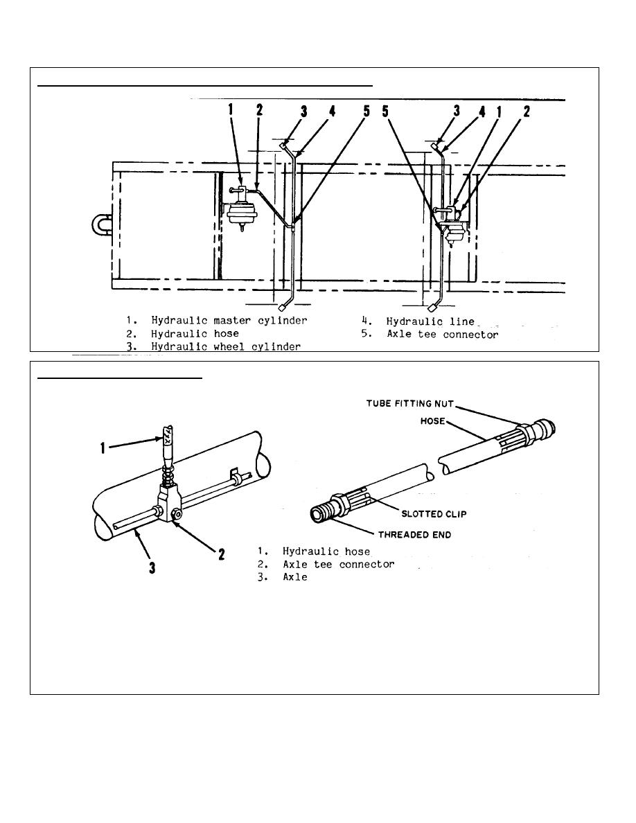
HOSE, TUBING AND FITTINGS (AIR AND HYDRAULIC) (cont)
REMOVAL OF HYDRAULIC HOSE
1. Remove hydraulic hose (1) from wheel cylinder line connecting tee (2) on front of rear axle (3).
2. Unscrew tube fitting nut from hose.
3. Pry slotted clip off hose.
4. Unseat externally threaded end of hose in tee (2) of axle assembly and unscrew hose from fittings at both ends.
TA 314795
4-75