Home
Download PDF
Order CD-ROM
Order in Print
Figure 4-1. Installation Dimensions (Sheet 1 of 3) - TM-9-4120-400-140038
Figure 4-1. Installation Dimensions (Sheet 3 of 3) - TM-9-4120-400-140040
TM-9-4120-400-14 Air Conditioner Horizontal Compact 9 000 BTU/HR Model F9000H-1SA 115 Volt Single Phase 50/60 Hertz (4120-01-326-4370) Manual
Page Navigation
30
31
32
33
34
35
36
37
38
39
40
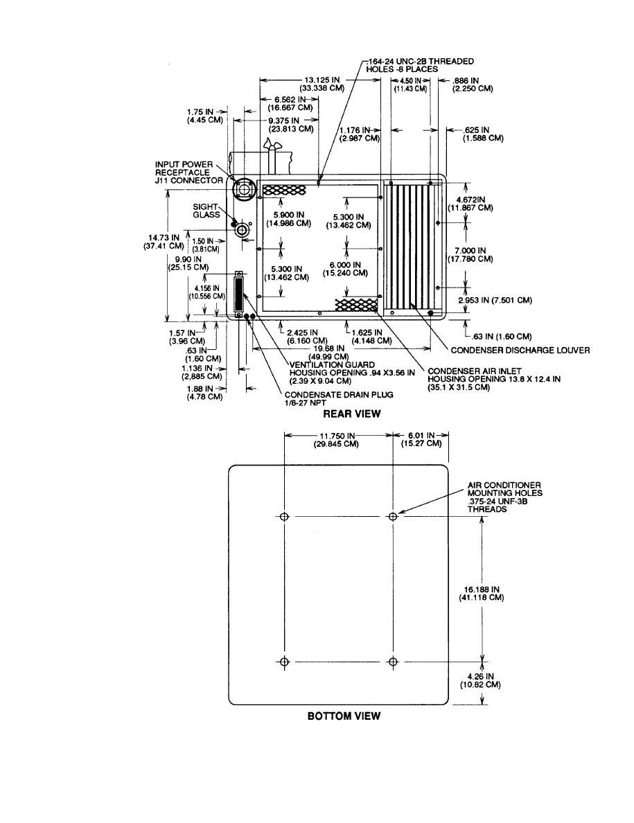
TM9-4120-400-14
Figure
4-1.
Installation
Dimensions
(sheet
2 of 3)
4-5