Home
Download PDF
Order CD-ROM
Order in Print
Figure 4-1. Installation Dimensions.
Figure 4-3. Input Power Cable Wiring.
TM-9-4120-385-14 Air Conditioner Vertical Compact 9 000 BTU/HR 115 Volt 1-Phase 50/60 Hertz Manual
Page Navigation
29
30
31
32
33
34
35
36
37
38
39
TM
9-4120-385-14
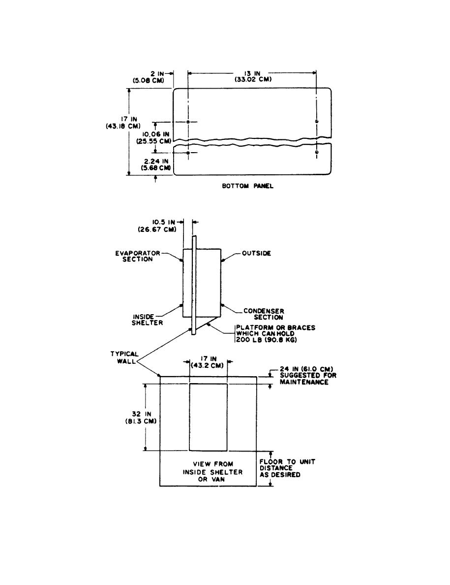
Figure
4-2.
Dimensions
And Mounting Hardware
Location.
4-4