TM 9-4120-388-14
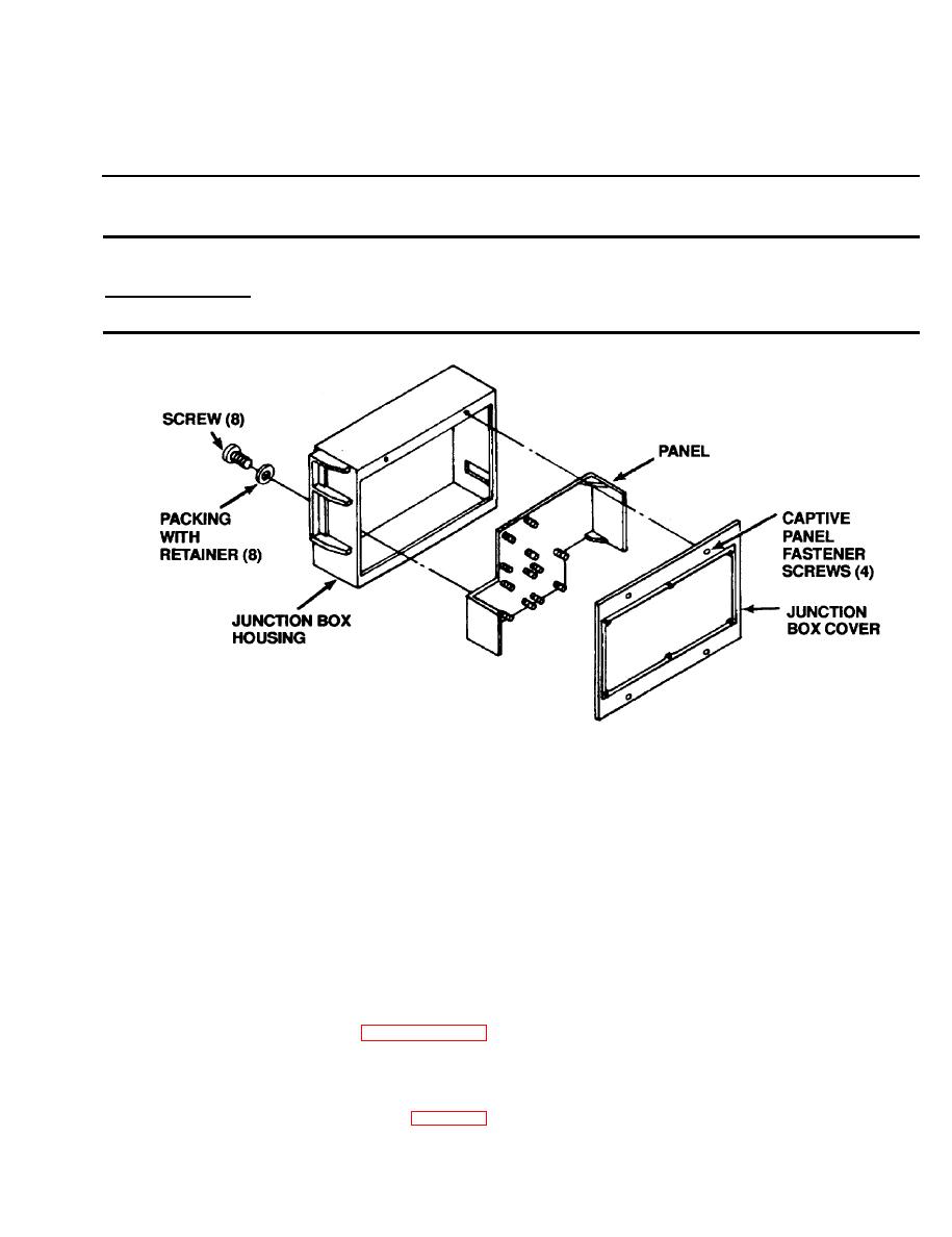
4-59. JUNCTION BOX
HOUSING, PANEL AND
COVER.
This task consists of:
a. Access
b. Inspection
c. Disassembly/Reassembly
d. Installation
INITIAL SET-UP:
Equipment Condition
Junction box removed (4-46).
a. Access.
(1) Loosen four captive panel fastener screws injunction box cover.
(2) Remove cover.
b. Inspection.
(1)
Be sure that cover is not bent or punctured. Replace if damaged.
(2)
Be sure that gaskets are not cracked, loose, or missing and that fluid diagram plate is in place and legible.
Replace gasket and diagram plate as required.
(3)
Check junction box housing and panel for cracked welds and loose or missing hardware. Replace repair
as required.
d. Installation.
(1) Secure junction box cover with four captive panel fastener screws.