Home
Download PDF
Order CD-ROM
Order in Print
Figure 4-2. Installation Dimensions (Sheet 1 of 4)
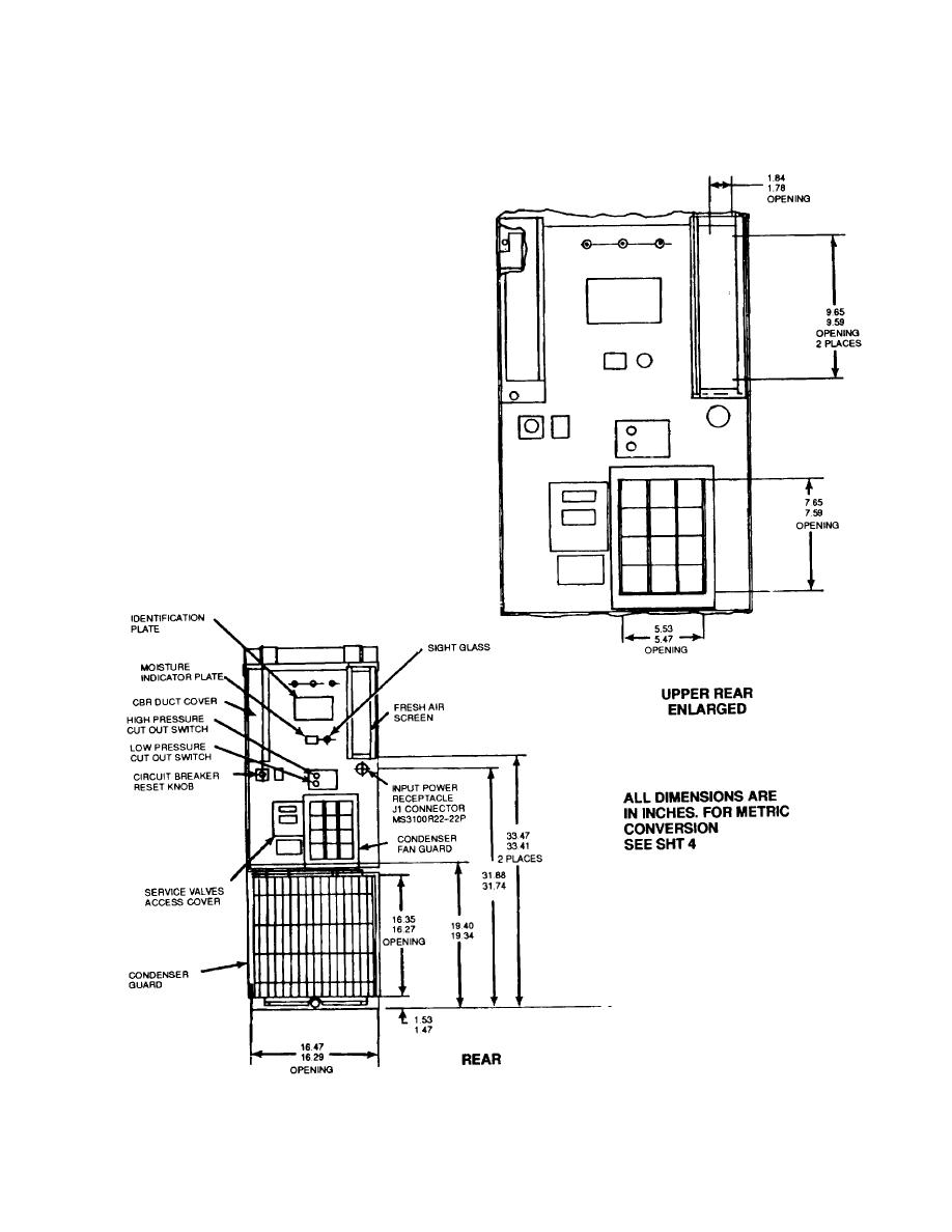
Figure 4-2. Installation Dimensions (Sheet 3 of 4)
TM-9-4120-388-14 Air Conditioner Vertical Compact 18 000 BTU/HR 208 Volt 3 Phase 50/60 Hertz NSN 4120-01-21 4-3692 Manual
Page Navigation
35
36
37
38
39
40
41
42
43
44
45
TM 9-4120-388-14
4-5.
INSTALLATION
SITE
PREPARATION
-
Continued.
Figure
4-2.
Installation
Dimensions
(Sheet
2 of 4)
4-5